Ngân Thuận Cần Thơ
Dự Án Ngân Thuận Cần Thơ được quy hoạch trên tổng diện tích 150 ha với tổng vốn đầu tư trên 8.000 tỷ đồng làm chủ đầu tư là Công Ty Kita Group tọa lạc ngay ngay VVõ Văn Kiệt, Phường Bình Thuỷ, Quận Bình Thuỷ, Thành phố Cần Thơ. Dự án đất nền Ngân Thuận với định hướng phát triển trở thành khu mở rộng nền nhà phố cao cấp, Thương Mại & Dịch Vụ, Văn Phòng & Khu Shophouse, Officetel, .. Hứa hẹn sẽ là một trong những dự án hot nhất thị trường Đất nền Cần Thơ.
Khu dân cư Ngân Thuận Cần Thơ nằm giữa hai tuyến đường huyết mạch là VVõ Văn Kiệt và Lê Hồng Phong, cách sân bay Quốc tế Cần Thơ chỉ 2km và về trung tâm thành phố Cần Thơ chỉ 5km với nhiều tiện ích nội khu, hạ tầng tầng hoàn thiện, mảng xanh đa dạng làm việc cho khu dân cư Ngân Thuận là đáng tin cậy và đầu tư đất nền, nhà phố tại dự án cũng trở nên có năng lực với giá bán hiện còn thấp hơn giá trị mà khu dân cư này mang lại cho Bình Thủy Cần Thơ.
- Vị trí dự án: VVõ Văn Kiệt, Phường Bình Thuỷ, Quận Bình Thuỷ, TP. Cần Thơ.
- Chủ đầu tư: Kita Group.
- Quy mô: 150 ha.
- Loại hình sản phẩm: Căn hộ cao cấp, Shophouse, Đất Nền, Nhà Phố,…..
- Diện tích sản phẩm: 99m2 – 500m2.
- Pháp lý: Sổ hồng sở hữu lâu dài.
- Phòng kinh doanh dự án: Để nhận thông tin chính xác nhất, quý khách vui lòng liên hệ website vincom-shophouse.vn.
Bài viết này sẽ phân tích chi tiết mọi khía cạnh của dự án, giúp nhà đầu tư và khách hàng có cái nhìn toàn diện trước khi đưa ra quyết định.

Bảng Giá bán Ngân Thuận Cần Thơ
Bảng Giá bán Dự Án Ngân Thuận Cần Thơ là thông tin được khách hàng và nhà đầu tư quan tâm hàng đầu. Mức giá sẽ có sự khác biệt tùy thuộc vào nhiều yếu tố như: loại hình sản phẩm, diện tích, vị trí và thời điểm mở bán của từng giai đoạn.
Cập nhật Bảng Giá bán Dự Án Ngân Thuận Cần Thơ Mới Nhất
Phòng kinh doanh vincom-shophouse.vn xin gửi đến quý khách hàng bảng giá tham khảo để có cái nhìn sơ bộ về các dòng sản phẩm. Lưu ý, đây là giá tham khảo và có thể thay đổi theo chính sách của chủ đầu tư. Để nhận Bảng Giá bán Ngân Thuận Cần Thơ chính xác tuyệt đối, bảng giá chi tiết từng lô, từng căn và các chương trình ưu đãi, chiết khấu mới nhất đang áp dụng, quý khách vui lòng liên hệ trực tiếp hotline 0949.124.589.
Chi tiết Bảng Giá Bán Ngân Thuận Cần Thơ và các loại hình khác
- L59-7x,7x ,7x – Diện Tích : 5 x 22 = 110m2 – Hướng Tây Nam – Lộ Giới 14m – Pháp Lý : Sổ sẵn – Giá Bán : 2 tỷ 350 triệu
- L60-8x – Diện Tích : 4.5 x 22 = 99m2 – Hướng : Đông Bắc – Lộ Giới 14m – Pháp Lý : Sổ sẵn – Giá Bán : 2 tỷ 200 triệu – View : Nhà Phố bình thường
- L66-5x – Diện Tích : 5 x 22 = 110m2 /1 nền Hướng : Đông Bắc – Pháp lý : Sổ Sẵn – Lộ giới : 14m đường số 26 Giá bán : 2 tỷ 250 triệu /1 nền View : Nhà Phố bình thường
- L66-5x – Diện Tích : 5 x 22 = 110m2 /1 nền Hướng : Đông Bắc – Pháp lý : Sổ Sẵn- Lộ giới : 14m đường số 26 Giá bán : 2 tỷ 400 triệu /1 nền View : Nhà Phố bình thường
- L54-4x – Diện Tích : 5 x 22 = 110m2 – Hướng : Tây Nam Pháp lý : HĐ ( sắp có sổ ) – Lộ giới : 14m đường số 28 Giá bán : 2 tỷ 250 triệu View : Nhà Phố gần Hồ ánh sáng và Khu sần golf ( đã chuyển đổi thành cụm chung cư cao cấp 25 tầng ) .
- L58-5x – Diện Tích : 5 x 22 = 110m2 /1 nền Hướng : Đông Bắc – Pháp lý : HĐ – Lộ giới : 14m đường số 26 Giá bán : 5.394.416.441/1 Căn Loại Hình : Towhouse (1 trệt 2 lầu ) View : Towhouse ven Hồ Ánh Sáng
- L29-5x – Diện Tích : 4.5 x 25 = 112.5m2 – Hướng : Tây Bắc – Pháp Lý : HĐ ( chuẩn bị công chứng sổ ) Lộ Giới 14m đường số 3 Giá Bán : 1.950.000.000vnđ
- H06 – 1x – Diện Tích : 5 x 22 = 110m2 – Hướng : Tây Nam – Pháp Lý : Hợp đồng Lộ giới : 14m đường số 28 view Shophouse Phân khu Diamond
- L08-4x – Diện Tích : 5 x 25 = 125m2 – Hướng : Đông Nam – Pháp Lý : Sổ sẵn Lộ giới : 14m (Đường số 22 ) View : Trưởng Mầm Non Giá Bán : 2.400.000.000 vnđ
- A6-0x,0x – Diện Tích : 5 x 18m = 90m2 ( có hẻm kỹ thuật riêng phía sau – xây full đất ) – Hướng : Đông Bắc – Pháp lý Sổ Sẵn Lộ giới : 14m , đường số 53 view Điện máy chợ lớn , TTT mua sắm Nhật Long , hãng xe MG Giá Bán
- A05-2x,2x – Diện Tích : 5 x 24.5 = 122.5m2 ( hẻm kỹ thuật riêng ) – Hướng : Tây Bắc – Pháp Lý : Sổ sẵn Lộ giới : 17,5m , đường số 4 View : Nhà Phố Giá Bán : 3.300.000.000 vnđ /1 nền .
- A05-2x ( góc lớn) – Diện Tích : 8.5 x 24.5 = 200.2m2 ( hẻm kỹ thuật 2m riêng phía sau ) – Hướng : Tây Bắc – Pháp Lý : Sổ sẵn Lộ giới : 17.5m ( đường số 4 ) View : Nhà Phố Giá Bán : 6.500.000.000. vnđ
- L14-4x,4x : Cặp Góc Diện Tích : 5 x 21.5 = 107.5m2 – Hướng : Tây Nam Lộ Giới : 25m ( đường số 44 ) – Pháp lý: sổ sẵn . Diện Tích : 6 x 21.5 = 116,.5m2 Hướng : Tây Nam Lộ Giới : 25m ( đường số 44 ) Pháp lý: sổ sẵn . Cặp góc giá bán : 8.200.000.000 vnđ
- L06-3x,4x : Cặp Góc Diện Tích: 8.5 x 21.5 = 182,75m2 Hướng : Đông Nam Lộ Giới : 25m , đường số 7 Pháp Lý : Sổ Sẵn Giá Bán : 6.000.000.000vnđ
- L29-4x : Góc Diện Tích : 5 x 21,5 =95m2
- L29-4x : Kề Góc Diện Tích : 5 x 21.5 = 107.5
- L29-4x: Thường ( bán lẻ 3 tỷ ) Diện Tích : 5 x 21.5 = 107.5m2 Hướng : Tây Nam Pháp Lý : Sổ sẵn Lộ giới : 25m ( đường số 37 ) View : Nhà Phố Giá Bán : 11.000.000.000 vnđ
- B05- 3x-4x : Góc 3 nền Biệt Thự Diện Tích : 24 x 31,5 =756m2 Hướng : Đông Nam Pháp Lý : Sổ sẵn Lộ giới : 25m ( đường số 24 – Đổ Trọng Văn ) View : Nhà Phố – Biệt Thự Giá Bán : 23.500.000.000vnđ ( nền lẻ 7.500.000.000 , cặp góc 16.500.000.000 vnđ )
- L10-3x Diện Tích : 4.5 x 22 = 99m2 Hướng : Đông Nam Pháp Lý : Sổ sẵn Lộ giới : 36m ( Lạc Long Quân ) View : Nhà Phố Mặt Tiền Thương mại Giá Bán : 5.500.000.000vnđ
- L08-2x,2x Diện Tích : 5 x 25 = 125m2 /1 nền Hướng : Tây Bắc Pháp Lý : Sổ sẵn Lộ giới : 36m ( đường Lạc Long Quân ) View : Nhà Phố Đối diện Siêu Thị và Trường Học Quốc Tế Trên đất đã có kho sẵn sàng cho thuê Giá Bán : 8.125.000.000 vnđ ( 65 triệu/1m2 ) .
- L13-0x Diện Tích : 4.5 x 22 = 99m2 Hướng : Tây Bắc Pháp Lý : Sổ sẵn Lộ giới : 36m ( đường Lạc Long Quân ) View : Nhà Phố Thương mại trục chính Giá Bán : 5.400.000.000 vnđ .
- L60-6x,6x : Cặp Góc VIP Diện Tích : 5 x 20.06 = 100.3m2 Hướng : Đông Nam Pháp Lý : Sổ sẵn Lộ giới : 25m ( đường số 13 ) View : Nhà Phố Mặt Tiền Thương mại Giá Bán : 10.500.000.000vnđ
- L59- 7x,7x, Diện Tích :5 x 22 =110m2 Hướng : Tây Nam Pháp Lý : Sổ sẵn ( nền 74 , còn lại HĐ sắp công chứng ). Lộ giới : 14m ( Đường số 28 ) View : Nhà Phố Giá Bán :2.350.000.000 vnđ
- L59-7x Diện Tích :5 x 22 =110m2 Hướng : Tây Nam Pháp Lý : Sổ sẵn Lộ giới : 14m ( Đường số 28 ) View : Nhà Phố Giá Bán :2.400.000.000 vnđ .
- L05-5x Diện Tích :4.5 x 22 =99m2 Hướng : Tây Nam Pháp Lý : Sổ sẵn Lộ giới : 51 m ( Đường số 51 ) View : Nhà Phố đối diện Siêu Thị Thương Mại Giá Bán :2.400.000.000 vnđ
- L46-5x,5x Diện Tích :5 x 21.8 =109m2 Hướng : Đông Nam Pháp Lý : Sổ sẵn Lộ giới : 25m ( Đường số 13 ) View : Nhà Phố Thương Mại Giá Bán :2.650.000.000 vnđ /nền
- L42-2x Diện Tích :5 x 22.25 =111.2m2 Hướng : Tây Nam Pháp Lý : Sổ sẵn Lộ giới : 25 ( Đường số 29 ) View : Nhà Phố Giá Bán :3.200.000.000 vnđ .
- H11-2x Diện Tích : 6 x 20 =120m2 Hướng : Đông Bắc Pháp Lý : Sổ sẵn Lộ giới : 17.5m ( Đường số 26A ) View : Nhà Phố Giá Bán :3.600.000.000 vnđ
- H11-1x Diện Tích : 6 x 20 =120m2 Hướng : Đông Bắc Pháp Lý : Sổ sẵn Lộ giới : 17.5m ( Đường số 26A ) View : Nhà Phố Giá Bán :3.800.000.000 vnđ
- L49-1x Diện Tích : 5 x 22.2 =111m2 Hướng : Tây Nam Pháp Lý : Sổ sẵn ( chekc lại ) Lộ giới : 25m ( đường số 29 ) View : Nhà Phố Thương Mại trục đại lộ ánh sáng Giá Bán :4.500.000.000 vnđ
- L49-1x Diện Tích : 5 x 22.2 =111m2 Hướng : Tây Nam Pháp Lý : Sổ sẵn ( chekc lại ) Lộ giới : 25m ( đường số 29 ) View : Nhà Phố Thương Mại trục đại lộ ánh sáng Giá Bán :4.500.000.000 vnđ
- L49-1x Diện Tích : 5 x 22.2 =111m2 Hướng : Tây Nam Pháp Lý : Sổ sẵn ( chekc lại ) Lộ giới : 25m ( đường số 29 ) View : Nhà Phố Thương Mại trục đại lộ ánh sáng Giá Bán :4.500.000.000 vnđ
- L20-1x Diện Tích : 4.5 x 24 =108m2 Hướng : Đông Nam Pháp Lý : Sổ sẵn ( chekc lại ) Lộ giới :17,5m ( đường số 04 ) View : Nhà Phố Giá Bán : 2.700.000.000 vnđ L66-11,12 Diện Tích : 5 x 22 =110m2 Hướng : Tây Nam Pháp Lý : Sổ sẵn
- L66-1x Lộ giới : 17.5m ( đường số 26A ) View : Nhà Phố Giá Bán :2.600.000.000 vnđ /1 nền
- L62-5x,5x Diện Tích : 5 x 22 = 110m2 /1 nền Hướng : Đông Bắc Pháp lý : Sổ Sẵn Lộ giới : 25m đường số 29 Giá bán : 3 tỷ 350 triệu /1 nền View : Nhà Phố bình thường
- L62- 7x,7x Diện Tích : 5 x 22 = 110m2 /1 nền Hướng : Đông Bắc Pháp lý : Sổ Sẵn Lộ giới : 25m đường số 29 Giá bán : 3 tỷ 350 triệu /1 nền View : Nhà Phố bình thường
- L62-4x,4x : Cặp Góc Thương Lượng
- L59-0x Diện Tích : 5 x 22 = 110m2 Hướng : Đông Bắc Pháp lý : Sổ Sẵn Lộ giới : 25m đường số 29 Giá bán : 3 tỷ 350 triệu /1 nền View : Nhà Phố Thương mại trục Đại Lộ Ánh Sáng
- L48-0x Diện Tích : 4.5 x 20 = 90m2 Hướng : Tây Bắc Pháp lý : HĐ đợi sổ Lộ giới : 17.5m đường số 16 Giá bán : 1 .990.000.000 vnđ View : Nhà Phố gần cổng Đại Lộ Ánh Sáng
- L48-0x Diện Tích : 4.5 x 20 = 90m2 Hướng : Tây Bắc Pháp lý : HĐ đợi sổ Lộ giới : 17.5m đường số 16 Giá bán : đang đàm phán triệu View : Nhà Phố gần cổng Đại Lộ Ánh Sáng
- L53-6x Diện Tích : 5 x 22 = 110m2 Hướng : Đông Bắc Pháp lý : Sổ Sẵn Lộ giới : 14m đường số 32 Giá bán : đang thương lượng View : Nhà Phố Thương mại trục Đại Lộ Ánh Sáng .
- L55-0x Diện Tích : 4.5 x 22 = 99m2 Hướng : Tây Bắc Pháp lý : Sổ Sẵn Lộ giới : 14m đường số 18A Giá bán : thương lượng View : Sân Gofl , chuyển đổi thành cụm chung cư cao cấp 25 Tầng
- L55-1x Diện Tích : 4.5 x 22 = 99m2 Hướng : Tây Bắc Pháp lý : đang check Lộ giới : 14m đường số 18A Giá bán : đang thương lượng View : Sân Gofl , chuyển đổi thành cụm chung cư cao cấp 25 Tầng
- H07-1x Diện Tích : 5 x 22 = 110m2 Hướng : Tây Nam Pháp lý : Sổ Sẵn Hoàn công Quy Cách : Shophouse 1 trệt 4 lầu : 5 Tầng Diện Tích sử dụng : 384.1m2 ( diện tích xây dựng 82,2m2 ) Lộ giới : 14m đường số 26 Giá bán : 7.500.000.000vnđ View : Đối Diện TTTMDV Căn Hộ Cao Cấp 25 Tầng
- H07-1x Diện Tích : 5 x 22 = 110m2 Hướng : Tây Nam Pháp lý : Sổ Sẵn Hoàn công Quy Cách : Shophouse 1 trệt 4 lầu : 5 Tầng Diện Tích sử dụng : 384.1m2 ( diện tích xây dựng 82,2m2 ) Lộ giới : 14m đường số 26 Giá bán : 8.500.000.000vnđ View : Đối Diện TTTMDV Căn Hộ Cao Cấp 25 Tầng
- L45-5x Diện Tích : 5 x 25 = 125m2 Hướng : Đông Nam Pháp lý : Sổ Sẵn Lộ giới : 17,5 m đường số 12 Giá bán : 4.500.000.000vnđ View : Nhà Phố phân khu Diamond
- L27-3x Diện Tích : 5 x 25 = 125m2 Hướng : Đông Bắc Pháp lý : Sổ Sẵn Lộ giới : 14m đường số 38 Giá bán : 3.000.000.000vnđ View : Đối Diện trường Tiểu Học Bình Thuỷ
- L29-6x Diện Tích : 4.5 x 25 = 112.5m2 Hướng :Tây Bắc Pháp lý : Sổ Sẵn Lộ giới : 14m đường số 38 Giá bán :2.300.000.000vnđ View : Nhà Phố.
Chính sách thanh toán và ưu đãi vay ngân hàng
Chủ đầu tư Ngân Thuận luôn đưa ra các chính sách thanh toán rất linh hoạt, được chia thành nhiều đợt để giảm áp lực tài chính cho khách hàng. Thông thường, khách hàng chỉ cần thanh toán khoảng …% giá trị sản phẩm là đã có thể ký hợp đồng mua bán, phần còn lại được hỗ trợ bởi ngân hàng. Ngân hàng hỗ trợ, một đối tác chiến lược của Ngân Thuận, cung cấp các gói vay ưu đãi với lãi suất hấp dẫn và thời hạn vay dài hạn.
Ngoài ra, trong các đợt mở bán, chủ đầu tư thường áp dụng các chương trình chiết khấu cao và quà tặng giá trị cho khách hàng booking sớm. Đây là cơ hội tốt nhất để sở hữu sản phẩm với mức giá tối ưu.
Tổng quan Dự án Ngân Thuận Cần Thơ
Để có cái nhìn bao quát nhất về dự án Ngân Thuận Cần Thơ này, phòng kinh doanh vincom-shophouse.vn đã tổng hợp các thông số kỹ thuật chính thức từ chủ đầu tư Ngân Thuận trong bảng dưới đây:
| Tên dự án | Ngân Thuận Cần Thơ |
| Chủ đầu tư | Kita Group |
| Vị trí dự án | Võ Văn Kiệt, Phường Bình Thuỷ, Quận Bình Thuỷ,, TP. Cần Thơ. |
| Quy mô | 150 ha |
| Mật độ xây dựng | 60% |
| Tổng số lượng sản phẩm | > 5000 sản phẩm |
| Loại hình sản phẩm | Căn hộ cao cấp, Shophouse, Đất Nền, Nhà Phố,…. |
| Diện tích sản phẩm | 90 – 300 m2 |
| Mức giá / m2 Trung bình | 18 Triệu / m2 |
| Tiến độ xây dựng | Tiến độ đã hoàn thiện |
| Pháp lý | Sổ hồng sở hữu lâu dài |
| Ngân hàng hỗ trợ | Đã có sổ sẵn |
| Liên hệ Phòng Kinh Doanh Dự Án | Hotline: 0949.124.589 |

Vị trí Ngân Thuận Cần Thơ
Vị trí luôn là yếu tố then chốt quyết định giá trị bất động sản. Đối với Dự Án Ngân Thuận Cần Thơ, đây chính là lợi thế cạnh tranh bậc nhất, được giới chuyên gia đánh giá là “vị trí vàng” tại cửa ngõ phía Tây thành phố.
Địa chỉ Ngân Thuận Cần Thơ ở đâu?
Vị trí Dự án Ngân Thuận Cần Thơ nằm giữa hai tuyến đường huyết mạch là VVõ Văn Kiệt và Lê Hồng Phong, cách sân bay Quốc tế Cần Thơ chỉ 2km và cách trung tâm thành phố Cần Thơ chỉ 5km với nhiều tiện ích nội khu bộ, hạ tầng hoàn thiện, mảng xanh đa dạng làm cho khu dân cư Ngân Thuận là đáng tin cậy và đầu tư đất nền, nhà phố tại dự án cũng trở nên có năng lực với giá bán hiện còn thấp hơn giá value that the dân cư này mang lại.
- Cách trung tâm thành phố cần thơ 2,5km
- Cách sân bay quốc tế Cần Thơ 2km
- Cách khu công nghiệp trà nóc 5km
- Cách chợ Bình Thủy: 3km.
- Cách nhà cổ Bình Thủy 1km
- Cách khu du lịch Cồn Sơn 2km

Vị trí Ngân Thuận Cần Thơ và phong thủy
Không chỉ thuận lợi về giao thông, vị trí dự án còn được đánh giá cao về mặt phong thủy. Với việc được bao bọc bởi hệ thống sông ngòi, kênh rạch tự nhiên, Ngân Thuận Cần Thơ sở hữu địa thế “nhất cận thị, nhị cận giang, tam cận lộ”. Điều này không chỉ mang đến không gian sống trong lành, mát mẻ mà còn hứa hẹn mang lại tài lộc và vượng khí cho các chủ nhân tương lai.
Thiết Kế Ngân Thuận Cần Thơ
Thiết Kế Ngân Thuận Cần Thơ là sự giao thoa tinh tế giữa kiến trúc hiện đại, thời thượng của thế giới và các yếu tố thiên nhiên bản địa. Chủ đầu tư Ngân Thuận đã kiến tạo nên một không gian sống không chỉ đẹp về thẩm mỹ mà còn tối ưu về công năng và hài hòa với môi trường xung quanh.
Thiết Kế Shophouse Ngân Thuận Cần Thơ
Các căn Shophouse thương mại được ưu ái bố trí tại các trục đường huyết mạch của dự án. Thiết Kế Shophouse Ngân Thuận Cần Thơ tối ưu cho cả hai chức năng: kinh doanh sinh lời ở tầng trệt và không gian an cư tiện nghi ở các tầng trên. Với phong cách kiến trúc hiện đại, mặt tiền rộng thoáng và vỉa hè lớn, đây là sản phẩm lý tưởng cho các nhà đầu tư muốn khai thác kinh doanh đa ngành nghề hoặc cho thuê, tạo nguồn thu nhập thụ động ổn định.
Thiết Kế Đất Nền Ngân Thuận Cần Thơ
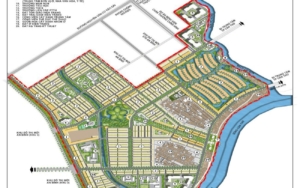
Mặt bằng Ngân Thuận Cần Thơ
Mặt bằng Ngân Thuận Cần Thơ là một trong những dự án chiến lược của tập đoàn Kita Group trong năm 2019. Do đó, diện tích đất được phân phối hợp lý, đa dạng đáp ứng mọi nhu cầu của chủ sở hữu. Diện tích sử dụng đất từ 90m2 đến 300m2 giải quyết bài toán “đất chật, người đông” nội ô Thành phố Cần Thơ.
Khu đô thị sở hữu cây xanh gần 30% sẽ được chọn lại không khí trong lành giữa các ô thành phố. Dự án được xây dựng theo chuẩn như điện âm, âm thanh… và đã hoàn thiện trên tầng hạ tầng.
Tiện ích Ngân Thuận Cần Thơ
Tiện ích Ngân Thuận Cần Thơ được chủ đầu tư Ngân Thuận định hướng theo mô hình khu đô thị phức hợp hiện đại, một “thành phố thu nhỏ”. Nơi đây, cư dân có thể tận hưởng một cuộc sống tiện nghi “tất cả trong một” mà không cần phải di chuyển đâu xa, mọi nhu cầu từ giáo dục, y tế, mua sắm đến giải trí, thể thao đều được đáp ứng ngay trước cửa nhà.
Tiện ích Ngân Thuận Cần Thơ: Đẳng cấp “All-in-one”
Chủ đầu tư đã dành phần lớn diện tích đất để phát triển các công trình tiện ích công cộng và mảng xanh. Hệ sinh thái tiện ích nội khu đẳng cấp bao gồm:
- Trung tâm thương mại
- Công an quận Bình Thủy
- Quận Ủy Bình Thủy
- Sân gôn đầu tiên tại thành phố Cần Thơ
- Hùng Vương được xây dựng
- Cách mầm non Sơn Ca: 400m.
- Cách Trạm Y Tế phường Bình Thủy, trung tâm hành chính Quận Bình Thủy: 500m.
- Công Viên nhật bản
- Cách Trường THPT Bình Thuỷ: 800m.

Không gian sống xanh an lành tại Ngân Thuận Cần Thơ
Một trong những tiện ích đắt giá nhất chính là môi trường sống. Với mật độ xây dựng chỉ khoảng 35% và gần 30% diện tích dành cho cây xanh và mặt nước, Ngân Thuận Cần Thơ thực sự là một không gian sống lý tưởng. Hệ thống kênh rạch tự nhiên được giữ gìn, khơi thông và tôn tạo, không chỉ tạo cảnh quan đẹp mà còn giúp đối lưu không khí, mang đến một môi trường sống luôn mát mẻ, trong lành và gần gũi với thiên nhiên.



Kết nối tiện ích ngoại khu nhanh chóng
Nhờ sở hữu “vị trí vàng”, cư dân Ngân Thuận Cần Thơ còn được thừa hưởng toàn bộ hệ sinh thái tiện ích cao cấp. Ngoài các khu tiện ích nội khu, dân cư tại Ngân Thuận cần Thơ còn gần các khu công nghiệp và khu dân cư lớn nên trong vòng bán kính 3km, sẽ được thừa hưởng các tiện ích của khu vực lân cận như: Trung tâm hành chính, ngân hàng, trường học, bệnh viện, siêu thị, chợ,…
Với vị trí đắc địa, nơi hẹn sẽ trở thành nơi an cư lạc nghiệp, đầu tư đắc địa và năng lực hiếm khi có trong đoạn này. Ngoài các tiện ích nội khu, dự án của khu đô thị Ngân Thuận Cần Thơ còn có các tiện ích khác như:
- Cách KCN Trà Nóc khoảng 7km ‘
- Cách sân bay quốc tế Cần Thơ : 2km.
- Cách trung tâm thành phố Cần Thơ 3km
- Cách chợ Bình Thủy: 3km.
- Cách nhà cổ Bình Thủy 1km
- Cách khu du lịch Cồn Sơn 2km
Hệ thống an ninh 24/7
Toàn bộ khu đô thị được vận hành với hệ thống an ninh đa lớp, bao gồm chốt gác tại các cổng ra vào, đội ngũ bảo vệ tuần tra liên tục và hệ thống camera giám sát 24/7, đảm bảo an toàn tuyệt đối cho tài sản và cuộc sống của cư dân.
Tiềm Năng Khu Dân Cư Ngân Cần Thơ
Các yếu tố chờ xung quanh đang tăng tốc
- Đường Cao Trung Lương – Mỹ Thuận đang dần hoàn thiện.
- Đường ven sông Hậu gần như hoàn thiện từ cầu Vàm Cống đến cầu Cần Thơ, và chạy dài ra của sông tại Biển Đông.
- Tập đoàn VinGroup đang xây dựng nhiều dự án từ nghỉ dưỡng đến trung tâm thương mại tại thành phố Cần Thơ cũng kéo theo các dự án lân cập tăng giá
- Sức hút của dự án chính là vị trí trung tâm, hạ tầng quy hoạch đồng bộ, là nơi tập trung các tiện ích giáo dục, y tế, du lịch ngay quận trung tâm Ninh Kiều…
- Hướng đến trải nghiệm đa tiện ích, nội khu dự án đã hiện hữu công viên cây xanh để cư dân có không gian thư giãn ngay khi đặt bước chân vào KĐT và một bệnh viện của Cần Thơ.
- Trong bán kính 1km xung quanh dự án hội tụ đầy đủ tiện nghi thiết yếu của cuộc sống, như hệ thống giáo dục từ mầm non đến đại học, hệ thống y tế hiện đại tiêu chuẩn quốc tế; trải nghiệm du lịch nghỉ dưỡng, tâm linh nổi tiếng bậc nhất Tây Đô
- Dự án có pháp lý minh bạch, sổ đỏ từng nền, cộng với thế mạnh về vị trí và giá trị sống đẳng cấp, KDC ngân thuận sẽ thổi bùng làn sóng đầu tư mới cho bất động sản Cần Thơ, mang đến một nơi an cư hội tụ đa tiện ích, xứng tầm thông điệp “An Lộc tại gia, thuận sinh phú quý”.
Các yếu tố hạ tầng quy hoạch
- Ngoài ra, một trong những cú hích hạ tầng tạo đòn bẩy cho bất động sản Khu dân cư Ngân Thuận Cần Thơ bật tăng trong thời gian tới, chính là hệ thống giao thông, cầu đường liên tục được chính phủ quan tâm đầu tư, trong đó phải kể đến:
- Cao tốc Trung Lương – Mỹ Thuận đảm bảo tiến độ thông xe kĩ thuật trong cuối năm nay; tiếp theo là dự kiến khởi công cao tốc Mỹ Thuận – Cần Thơ trong tháng 10.
- Đặc biệt mới đây, Thủ tướng chính phủ đồng ý cho làm tuyến cao tốc Cần Thơ – Cà Mau giai đoạn 2021-2025; bên cạnh các tuyến giao thông huyết mạch khác như cao tốc Lộ Tẻ – Rạch Sỏi, Châu Đốc – Cần Thơ – Sóc Thăng, Hà Tiên – Rạch Giá – Bạc Liêu… đang tạo sức bật mạnh mẽ cho bất động sản khu vực ĐBSCL tăng trưởng trong thời gian tới.
- Với thế mạnh về hạ tầng liên vùng, đặc biệt là vị trí quận trung tâm TP Cần Thơ hội tụ đa tiện ích, Khu Ngân Thuận Cần Thơ đang tạo sóng thị trường và thu hút mạnh mẽ giới đầu tư các tỉnh thành khu vực ĐBSCL.
Nhà Mẫu Ngân Thuận Cần Thơ
Để khách hàng có những trải nghiệm chân thực và trực quan nhất về không gian sống tương lai tại Dự Án Ngân Thuận Cần Thơ, chủ đầu tư đã xây dựng khu nhà mẫu ngay tại dự án. Đây là cơ hội để khách hàng “mắt thấy tai nghe” chất lượng sản phẩm trước khi ra quyết định.
Trải nghiệm thực tế nhà mẫu Ngân Thuận Cần Thơ
Tham quan nhà mẫu là bước quan trọng giúp khách hàng cảm nhận trực tiếp về chất lượng xây dựng, các loại vật liệu bàn giao, cũng như cách bố trí không gian thông minh và tối ưu công năng sử dụng. Mỗi loại hình sản phẩm đặc trưng như Đất Nền Ngân Thuận Cần Thơ hay shophouse đều có nhà mẫu riêng , được chăm chút tỉ mỉ đến từng chi tiết.
Thiết Kế nội thất nhà mẫu sang trọng, tinh tế
Nội thất bên trong các căn nhà mẫu được lựa chọn từ các thương hiệu uy tín, thiết kế theo phong cách hiện đại và sang trọng. Đây là những gợi ý quý giá để khách hàng tham khảo, từ đó có thể hình dung và lên ý tưởng bài trí cho tổ ấm tương lai của mình một cách khoa học, thẩm mỹ và phù hợp nhất với sở thích cá nhân.
Liên hệ tham quan nhà mẫu
Khu nhà mẫu luôn mở cửa đón khách tham quan. Để được hỗ trợ tốt nhất, sắp xếp lịch hẹn và có chuyên gia tư vấn chi tiết đồng hành trong suốt quá trình tham quan, quý khách hàng vui lòng liên hệ trực tiếp phòng kinh doanh vincom-shophouse.vn qua hotline 0949.124.589.
Chính sách thanh toán và ưu đãi vay ngân hàng
Chủ đầu tư Ngân Thuận luôn đưa ra các chính sách thanh toán rất linh hoạt, được chia thành nhiều đợt để giảm áp lực tài chính cho khách hàng. Hỗ trợ ngân hàng và cung cấp các gói vay ưu đãi với lãi suất hấp dẫn và thời hạn vay dài hạn.
Ngoài ra, trong các đợt mở bán, chủ đầu tư thường áp dụng các chương trình chiết khấu cao và quà tặng giá trị cho khách hàng booking sớm. Đây là cơ hội tốt nhất để sở hữu sản phẩm với mức giá tối ưu.
Tiến Độ Xây Dựng Ngân Thuận Cần Thơ
Tiến độ xây dựng là yếu tố then chốt thể hiện uy tín, năng lực của chủ đầu tư và đảm bảo quyền lợi cho khách hàng. Tại Dự Án Ngân Thuận Cần Thơ, công trường luôn được duy trì không khí thi công khẩn trương, sôi động để đảm bảo bàn giao đúng cam kết.
Tiến độ Ngân Thuận Cần Thơ cập nhật mới nhất
Tính đến thời điểm hiện tại, dự án đã hoàn thiện.



Cam kết về chất lượng và thời gian bàn giao
Chủ đầu tư cam kết đảm bảo chất lượng công trình ở mức cao nhất và bàn giao sản phẩm đúng theo tiến độ đã công bố với khách hàng. Mọi hoạt động xây dựng đều được giám sát chặt chẽ, tuân thủ nghiêm ngặt các tiêu chuẩn kỹ thuật.
Hình ảnh thực tế công trường dự án
Tiến độ thi công có thể thay đổi nhanh chóng theo từng tuần, từng tháng. Để nhận được hình ảnh và video mới nhất, cập nhật nóng hổi trực tiếp từ công trường, quý khách hàng vui lòng liên hệ với đội ngũ của vincom-shophouse.vn.
Liên hệ phòng kinh doanh Ngân Thuận Cần Thơ
Quý anh/chị cần hỗ trợ thông tin về tiến độ dự án Ngân Thuận Cần Thơ vui lòng liên hệ qua Điện thoại, Viber, Zalo hoặc Wechat qua số điện thoại 0949.124.589
- Tư vấn chính xác thông tin chi tiết nhà mẫu
- Hướng dẫn và tư vấn đúng nhu cầu thực tế (Đầu tư và An cư) cho khách hàng , chọn căn vị trí đẹp, phù hợp với nhu cầu khách hàng
- Hỗ trợ Hợp đồng – Pháp lý
- Hỗ trợ tham quan thực tế Hướng dẫn thủ tục và quy trình hỗ trợ ngân hàng
- Đồng hành trước và sau khi bán hàng cho khách hàng (Chuyển nhượng)
Với những lợi thế vượt trội về vị trí, quy hoạch, pháp lý và uy tín chủ đầu tư, Ngân Thuận Cần Thơ không chỉ là nơi an cư lý tưởng mà còn là một kênh đầu tư an toàn, hiệu quả. Để nhận được sự tư vấn chuyên sâu, thông tin chính xác nhất và hỗ trợ tham quan dự án, quý khách hàng vui lòng liên hệ với các chuyên gia tại Phòng Kinh Doanh Dự Án Ngân Thuận Cần Thơ:
- Website: https://vincom-shophouse.vn/
- Hotline: 0949.124.589
- Địa chỉ: A5-18, đường 51 khu dân cư Ngân Thuận, Phường Bình Thủy, Thành Phố Cần Thơ.
Ký Gửi Bán Lại Ngân Thuận
Quý anh / chị cần hỗ trợ mua bán lại, ký gửi khu dân cư Ngân Thuận Cần Thơ vui lòng thông báo tin nhắn mã căn hộ 1 phòng ngủ KDC Ngân Thuận Cần Thơ muốn bán lại ví dụ (Mã căn hộ, Giá hợp đồng, giá bán lại, ngày ký hợp đồng…) Hãy nhắn tin hoặc gọi điện qua hotline 0949.124.589 để định hướng nhé.
- Bán/ký gửi Dự án khu dân cư Ngân Thuận Cần Thơ – Mã căn:….
- Diện tích: ……. m2 Giá bán bao gồm VAT trên hợp đồng: ….. vnđ
- Lợi nhuận muốn thu về (sau khi trừ các chi phí: môi trường, công chứng, thuế ….): …. vnđ
- Tiến độ thanh toán trên hợp đồng: ……………. (Anh / chị vui lòng chụp tiến độ thanh toán trên hợp đồng của mình để chúng tôi biết tiến độ thanh toán)
- Họ tên & SĐT liên hệ: …….


