Nhà ở xã hội Bông Hồng Ghềnh Ráng Quy Nhơn
Nhà ở xã hội là gì? Ai được mua nhà ở xã hội?
Nhà ở xã hội là gì?
Nhà ở xã hội Bông Hồng Ghềnh Ráng Quy Nhơn là nhà ở thuộc sở hữu và quản lý của cơ quan nhà nước (cũng có thể là trung ương hoặc địa phương), hoặc được các tổ chức phi lợi nhuận xây dựng để cung cấp nhà ở giá rẻ dành cho một số đối tượng thuộc chính sách ưu tiên trong xã hội, như công chức nhà nước hoặc người có thu nhập thấp mà chưa có nhà ở thuê hoặc mua. Loại hình nhà này được cung cấp ra thị trường với mục đích: Đưa cơ hội sở hữu căn hộ với mức giá thấp hơn (thấp hơn nhà ở thương mại) cho những đối tượng nằm trong chính sách, đặc biệt là những đối tượng có hoàn cảnh khó khăn. Thông thường, nhà ở xã hội ở Việt Nam thường có 2 loại: Loại do nhà nước đầu tư và xây dựng và loại do các doanh nghiệp tư nhân xây dựng. Cụ thể:
- Loại do nhà nước đầu tư, xây dựng với mục đích là nhà ở xã hội
- Loại do doanh nghiệp tư nhân xây dựng rồi bán lại cho quỹ nhà ở xã hội, theo các hình thức đặc thù như giảm thuế VAT, giảm thuế đất,… Nhà ở thương mại nhưng phải bán lại 5% cho vào quỹ nhà ở xã hội địa phương theo pháp luật hiện hành.
- Pháp lý dự án Luxora Vĩnh Yên như thế nào ?
- Bảng giá bán Luxora Vĩnh Yên 12/2025 trung bình căn như thế nào?
- Tiến độ Luxora Vĩnh Yên hiện tại như thế nào?
- Chủ đầu tư dự án Luxora Vĩnh Yên có uy tín hay không?
- Phương thức thanh toán và ưu đãi căn hộ Luxora Vĩnh Yên như thế nào?,…

| NHỮNG ƯU ĐIỂM NỔI BẬT CỦA DỰ ÁN LUXORA VĨNH YÊN |
| • DỰ ÁN Luxora Vĩnh Yên VỚI TỔNG QUY MÔ HƠN 2 HA
• GIÁ ĐẶC BIỆT HẤP DẪN CHỈ TỪ 2-3 TỶ / CĂN . • DO ….. LÀM CHỦ ĐẦU TƯ . • PHƯƠNG THỨC THANH TOÁN LINH HOẠT VÀ HẤP DẪN. ☎ Hotline 24/7 : 0944 505 454 |
GIỚI THIỆU
Luxora Vĩnh Yên – Biểu tượng mới của phong cách sống hiện đại tại Vĩnh Phúc
QUY MÔ
Quy mô và hông tin chi tiết về Nhà ở xã hội Bông Hồng
| Tên dự án: | Nhà ở xã hội Bông Hồng |
| Địa chỉ: | Khu vực 3, P. Ghềnh Ráng, Quy Nhơn |
| Chủ đầu tư: | Công ty TNHH BĐS Bông Hồng |
| Ngày khỏi công dự án: | Đang xây dựng |
| Thời gian công trình hoàn thành: | Tháng 3/2027 |
| Hiện trạng xây dựng: | |
| Quy mô dự án: | 2.86 ha |
| Mật độ xây dựng: | |
| Tổng số căn hộ: | Gồm 2 tòa chung cư với hơn 800 căn hộ |
| Pháp lý dự án: | Hoàn Thiện |
| Loại hình sản phẩm | Căn hộ chung cư |
| Diện tích sản phẩm | |
| Tổng vốn đầu tư | |
| Mức giá/m2 Trung bình |
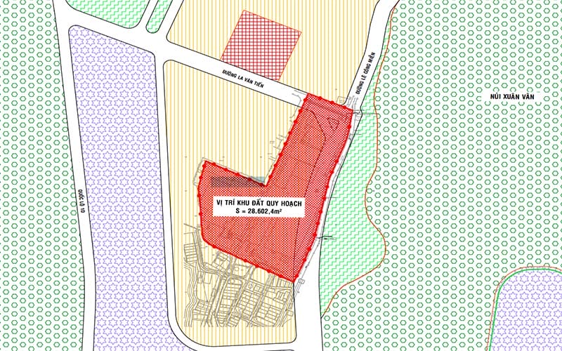
VỊ TRÍ
Vị trí & Liên kết vùng dự án NOXH Bông Hồng
Dự án nhà ở xã hội Bông Hồng tọa lạc tại khu vực 3, phường Ghềnh Ráng, thành phố Quy Nhơn, tỉnh Bình Định. Nếu là một nhà đầu tư bất động sản sành sỏi hẳn sẽ không thể bỏ qua mảnh đất màu mỡ, đầy tiềm năng như Quy Nhơn. Thành phố này đã và đang thu hút được rất nhiều sự quan tâm của các nhà đầu tư lớn, nhỏ ở cả trong và ngoài nước. Đồng thời cũng được chính quyền địa phương tạo rất nhiều ưu ái để phát triển.
TIỆN ÍCH
Tiện ích đẳng cấp của Dự án Nhà ở xã hội Bông Hồng
Tiện ích nội khu & ngoại khu dự án NOXH Bông Hồng
Trong bức tranh phát triển đô thị, tiện ích chính là “linh hồn” quyết định chất lượng sống của cư dân. Một dự án dù có vị trí đẹp, thiết kế sang trọng đến đâu nhưng thiếu hệ thống tiện ích đồng bộ thì cũng khó chạm đến trái tim khách hàng. Với Chung cư Luxora Vĩnh Yên, chủ đầu tư đã tiên phong kiến tạo một hệ sinh thái tiện ích chuẩn 5 sao – lần đầu tiên xuất hiện tại Vĩnh Phúc, mang đến một chuẩn mực sống mới, cân bằng giữa công việc – nghỉ dưỡng – giải trí.

MẶT BẰNG
THIẾT KẾ
Căn hộ 1 phòng ngủ (1PN: 45 – 55m²)
– Phù hợp cho người trẻ độc thân, cặp vợ chồng mới cưới hoặc chuyên gia nước ngoài.
– Thiết kế thông minh với phòng khách liền bếp, ban công rộng, tạo cảm giác thoáng đãng.
– Nội thất cơ bản cao cấp, tông màu sáng, dễ dàng bài trí.
Căn hộ 2 phòng ngủ (2PN: 65 – 80m²)
– Là dòng sản phẩm phổ biến nhất.
– Bố trí 2 phòng ngủ tách biệt, phòng khách trung tâm, bếp liền kề.
– 2 logia riêng biệt (1 logia phơi, 1 logia nghỉ ngơi), tối ưu tiện ích cho gia đình trẻ.
– Phù hợp cho gia đình có con nhỏ hoặc chuyên gia lưu trú dài hạn.
