Khu Đô Thị Mới An Bình Cần Thơ
Khu Đô Thị Mới An Bình Cần Thơ là khu dân cư có quy mô 163 hecta. tọa lạc tại Mặt tiền Đường Nguyễn Văn Cừ ,phường An Bình, Ninh Kiều, Cần Thơ. Khu Đô Thị Mới An Bình Cần Thơ được phát triển bởi Chủ đầu tư Hải Phát Invest với kinh nghiệm nhiều năm trong lĩnh vực bất động sản Đất Nền Cần Thơ.
Khu Đô Thị Mới An Bình với định hướng phát triển trở thành khu phước hợp nhà phố cao cấp, Thương Mại & Dịch Vụ, Văn Phòng & Khu Shophouse, Biệt Thự,…
- Pháp lý dự án như thế nào ?
- Hiện giá bán Khu Đô Thị Mới An Bình Cần Thơ 12/2025 trung bình là bao nhiêu?.
- Khu Đô Thị Mới An Bình Cần Thơ hiện tại như thế nào?
- Chủ đầu tư dự án Khu Đô Thị Mới An Bình Cần Thơ có uy tín hay không?
- Phương thức thanh toán và ưu đãi nhà phố Khu Đô Thị Mới An Bình Cần Thơ như thế nào?,…
Tất cả đều được ngũ nghiên cứu thị trường của Vincom-shophuouse tổng hợp và cập nhật liên tục thông qua bài viết dưới đây.
- Vị trí dự án: Mặt tiền Đường Nguyễn Văn Cừ ,phường An Bình, Ninh Kiều, Cần Thơ.
- Chủ đầu tư: Hải Phát Invest.
- Quy mô: 163 hecta.
- Loại hình sản phẩm: Đất Nền, Nhà Phố, Căn Hộ,…..
- Diện tích sản phẩm: 80 – 120 – 500m2
- Pháp lý: Sổ hồng sở hữu lâu dài.
- Phòng kinh doanh dự án: 0944.505.454.
Cập nhật Bảng giá bán Khu Đô Thị Mới An Bình Cần Thơ 12/2025 chỉ cần thanh toán 30% khách hàng đã sở hữu 1 siêu phẩm dự án Khu Đô Thị Mới An Bình Cần Thơ trực tiếp CĐT Hải Phát Invest. Liên Hệ Holine 0944.505.454 Xem Nhà Thực Tế.

Bảng Giá bán Khu Đô Thị Mới An Bình Cần Thơ
Bảng Giá bán Dự Án Khu Đô Thị Mới An Bình Cần Thơ là thông tin được khách hàng và nhà đầu tư quan tâm hàng đầu. Mức giá sẽ có sự khác biệt tùy thuộc vào nhiều yếu tố như: loại hình sản phẩm, diện tích, vị trí và thời điểm mở bán của từng giai đoạn.
Cập nhật Bảng Giá bán Dự Án Khu Đô Thị Mới An Bình Cần Thơ Mới Nhất
Phòng kinh doanh vincom-shophouse.vn xin gửi đến quý khách hàng bảng giá tham khảo để có cái nhìn sơ bộ về các dòng sản phẩm. Lưu ý, đây là giá tham khảo và có thể thay đổi theo chính sách của chủ đầu tư. Để nhận Bảng Giá bán Khu Đô Thị Mới An Bình Cần Thơ chính xác tuyệt đối, bảng giá chi tiết từng lô, từng căn và các chương trình ưu đãi, chiết khấu mới nhất đang áp dụng, quý khách vui lòng liên hệ trực tiếp hotline 0944 505 454.
Chi tiết Bảng Giá Bán Khu Đô Thị Mới An Bình Cần Thơ và các loại hình khác
| Loại hình sản phẩm | Diện tích điển hình (m²) | Giá bán tham khảo (Vui lòng liên hệ để có giá chính xác) |
|---|---|---|
| Shophouse Thương mại | (Đang cập nhật) | Liên hệ 0944 505 454 |
| Giá đất nền Khu Đô Thị Mới An Bình | (Đang cập nhật) | Liên hệ 0944 505 454 |
| Giá đất nền Khu Đô Thị Mới An Bình | (Đang cập nhật) | Liên hệ 0944 505 454 |
| Giá đất nền Phố Khu Đô Thị Mới An Bình | (Đang cập nhật) | Liên hệ 0944 505 454 |
=> Giá bán Khu Đô Thị Mới An Bình Cần Thơ công khai minh bạch phù hợp với thực tế so với các dự án xung quanh cùng chất lượng và tiện ích. Yếu tố ngân hàng đồng hành và hỗ trợ lãi suất giảm áp lực mua nhà và sau khi nhận nhà về ở.
Tổng quan Dự án Khu Đô Thị Mới An Bình Cần Thơ
Khu Đô Thị Mới An Bình Cần Thơ tọa lạc ngay trung tâm quận Ninh Kiều, TP. Cần Thơ. Phía Đông dự án giáp với Rạch Cái Sơn, phía Nam giáp sông Cần Thơ, phía Tây giáp Rạch Rau Răm và phía Bắc giáp với khu dân cư hiện hữu. Được xây dựng trên nền diện tích rộng tới 164,3ha (khu 1) và 48,75ha (khu 3) do Hải Phát Invest thuộc tập đoàn Hải Phát Land làm chủ đầu tư.
Khu đô thị An Bình 1 có mật độ xây dựng dao động từ 5 – 50% . Dự án bao gồm nhiều tiện ích như nội khu như trường học, khu thể thao, trung tâm thương mại dịch vụ đa chức năng, công viên vui chơi giải trí, khuôn viên cây xanh,… Khu đô thị An Bình 1 phát triển các loại hình nhà ở liền kề, shophouse, biệt thự, chung cư, nhà ở xã hội và nhà ở tái định cư với quy mô dân số ước tính khoảng 19.000 người.
| Tên dự án | Khu Đô Thị Mới An Bình Cần Thơ |
| Chủ đầu tư | Hải Phát Invest |
| Vị trí dự án | Mặt tiền Đường Nguyễn Văn Cừ ,phường An Bình, Ninh Kiều, Cần Thơ Tp Cần Thơ. |
| Quy mô | 163 hecta. |
| Mật độ xây dựng | 38% |
| Tổng số lượng sản phẩm | > 3000 sản phẩm |
| Loại hình sản phẩm | Đất Nền, Nhà Phố, Căn Hộ …. |
| Diện tích sản phẩm |
|
| Mức giá / m2 Trung bình | Liên hệ ngay : 0944.505.454. |
| Tiến độ xây dựng | Đã Hoàn Thiện |
| Pháp lý | Sổ hồng sở hữu lâu dài |
| Ngân hàng hỗ trợ | Đã có sổ sẵn |
| Liên hệ Phòng Kinh Doanh Dự Án | Hotline: 0944 505 454 |
Mục Tiêu Mang Lại Không Gian Sống Chất Lượng tại Khu Đô Thị Mới An Bình Cần Thơ
Một trong những cam kết hàng đầu của dự án Khu Đô Thị Mới An Bình Cần Thơ là mang đến không gian sống chất lượng, nơi cư dân có thể trải nghiệm cuộc sống đẳng cấp và tiện nghi. Mục tiêu này được đặt ra bởi Chủ đầu tư Hải Phát Invest với lòng nhiệt huyết và tầm nhìn dài hạn về sự phát triển bền vững. Dự án không chỉ là nơi cư trú, mà còn là điểm hội tụ của những giá trị đích thực.
Mỗi không gian trong dự án được quy hoạch một cách tỉ mỉ, từng chi tiết được chăm chút để đảm bảo sự thoải mái và hài lòng cho cư dân. Từ thiết kế nội thất đến tiện ích xung quanh, mọi yếu tố đều được tối ưu hóa để đáp ứng và vượt qua kỳ vọng của cư dân về một cuộc sống chất lượng, an lành và tiện ích. Nơi đây không chỉ xây dựng nhà ở, mà còn tạo ra một cộng đồng sống xanh, đẳng cấp và hiện đại, nơi mọi người có thể gọi đó là “ngôi nhà thứ hai” thực sự.
Kiến Trúc Độc Đáo – Nét Đẹp Hiện Đại
Tại đây không chỉ là nơi cung cấp nơi ở, mà còn là biểu tượng của sự đổi mới và sáng tạo trong kiến trúc. Thiết kế độc đáo với những đường cong mềm mại và kết cấu chắc chắn không chỉ tạo nên vẻ đẹp nghệ thuật mà còn đảm bảo sự thoải mái và tiện ích cho cư dân.
Tiện Ích Nổi Bật – Cuộc Sống Tiện Nghi
Khu Đô Thị Mới An Bình Cần Thơ mang đến không gian sống đẳng cấp với hệ thống tiện ích hiện đại như hồ bơi, công viên cây xanh, trung tâm thương mại và các khu vui chơi giải trí. Đây không chỉ là nơi ở, mà còn là nơi cư dân trải nghiệm cuộc sống đầy đủ và thoải mái.
Cơ Hội Đầu Tư – Nâng Tầm Giá Trị
Với uy tín của Chủ đầu tư, Khu Đô Thị Mới An Bình Cần Thơ là cơ hội đầu tư lý tưởng cho những người đang tìm kiếm giải pháp an cư hoặc muốn định danh trong thế giới bất động sản. Khu Đô Thị Mới An Bình Cần Thơ không chỉ là , đó là nơi mà bạn gọi là “nhà,” nơi mà mọi khoảnh khắc trở nên đặc biệt và ý nghĩa. Hãy đồng hành cùng chúng tôi để xây dựng một cuộc sống đẳng cấp và hiện đại nhất tại đây. Đăng ký ngay để sở hữu một phần của sự tiến triển và thành công này!
Vị trí Khu Đô Thị Mới An Bình Cần Thơ
Vị trí luôn là yếu tố then chốt quyết định giá trị bất động sản. Đối với Dự Án Khu Đô Thị Mới An Bình Cần Thơ, đây chính là lợi thế cạnh tranh bậc nhất, được giới chuyên gia đánh giá là “vị trí vàng” tại cửa ngõ phía Nam thành phố.
Địa chỉ Khu Đô Thị Mới An Bình Cần Thơ ở đâu?
Địa chỉ chính xác dự án Khu Đô Thị Mới An Bình Cần Thơ tọa lạc ngay trung tâm quận Ninh Kiều,TP Cần Thơ. Sỡ hữu vị trí chiến lượt về kinh tế cũng như đảm bảo nơi an cư dự án khu đô thị mới An Bình hứa hẹn nhiều tiềm năng để phát triển. Vị trí xung quanh dự án. Bốn phía của dự án liền kế các khu và tuyến đường như:
- Phía Đông: Giáp Rạch Cái Sơn
- Phía Tây: Giáp Rạch Rau Râm
- Phía Nam: Giáp Sông Cần Thơ
- Phía Bắc: Giáp khu dân cư hiện hữu
- Cách bệnh viện tim mạch 500m
- Bệnh viện ung bướu 500m
- Bệnh viện nhi đồng 500m
- Cách trung tâm hành chính mới 500m
Vị trí Khu Đô Thị Mới An Bình Cần Thơ và phong thủy
Không chỉ thuận lợi về giao thông, vị trí dự án còn được đánh giá cao về mặt phong thủy. Với việc được bao bọc bởi hệ thống sông ngòi, kênh rạch tự nhiên, Khu Đô Thị Mới An Bình Cần Thơ sở hữu địa thế “nhất cận thị, nhị cận giang, tam cận lộ”. Điều này không chỉ mang đến không gian sống trong lành, mát mẻ mà còn hứa hẹn mang lại tài lộc và vượng khí cho các chủ nhân tương lai.
Kết Vùng Của Khu Đô Thị Mới An Bình Cần Thơ
Bên cạnh những hạ tầng vốn có còn nhiều dự án hạ tầng giao thông đi qua địa bàn TP Cần Thơ đang được triển khai và sắp đi vào hoạt động như:
- Cầu Mỹ Thuận 2
- Cao tốc Trung Lương – Mỹ Thuận
- Cao tốc Mỹ Thuận – Cần Thơ
- Cao tốc Cần Thơ – Bạc Liêu – Cà Mau đã được Thủ tướng Chính phủ đồng ý xây dựng trong giai đoạn 2021 – 2025
Có thể nói rằng, chính sự đồng bộ về hạ tầng và những dự án mới đô thị mới là lực đẩy lớn cho thị trường bất động sản Cần Thơ “tăng tốc” trong thời gian gần đây hút dòng vốn từ nhiều Tập đoàn, doanh nghiệp trong nước và quốc tế.
Không chỉ mang đến làn gió mới mẻ, những dự án sẽ làm đa dạng nguồn cung nhà ở chất lượng cho cư dân địa phương cũng như tạo cơ hội cho các nhà đầu tư. Sự đa dạng của tiện ích xung quanh không chỉ tạo ra môi trường sống đầy đủ mà còn tăng cường giá trị bất động sản và thu hút đa dạng nhóm đối tượng khách hàng.
=> Khu Đô Thị Mới An Bình Cần Thơ bởi vì kết nối và quy hoạch vùng tốt tạo sự thuận lợi cho việc đi làm, mua sắm và yếu tố hạ tầng giúp tăng giá bền vững.
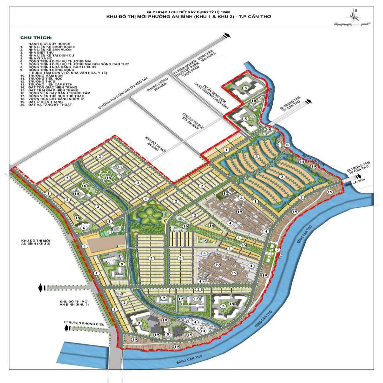
Mặt bằng Khu Đô Thị Mới An Bình Cần Thơ
Mặt bằng phân lô khu đô thị mới An Bình Cần Thơ-Ngày 12/12/2018 vừa qua, UBND Thành phố Cần Thơ ban hành Quyết định số 3297/QGG-UBND về việc chấp thuận chủ trương đầu tư cho liên danh Công ty cổ phần Đầu tư Hải Phát cùng với Tổng Công ty Xây dựng Công trình Giao thông 5-CTCP (CIENCO 5) và Công ty Cổ phần Đầu tư Đại Đông Á (BEA Holdings) là nhà đầu tư đối với dự án Khu đô thị mới An Bình 1. Dự kiến tổng mức vốn đầu tư dự án này gần 5.000 tỉ đồng.

Trong lĩnh vực bất động sản, Hải Phát Invest được biết đến với hàng loạt các dự án từ Nam ra Bắc. Hiện tại, doanh nghiệp này đang triển khai 4 dự án là The Vesta, Roman Plaza, khu đô thị mới Phú Lương và khu đấu giá Trâu Quỳ. Theo chủ đầu tư Hải Phát, dự án An Bình 1 sẽ được hoàn thành trong vòng 2,5 năm kể từ thời điểm bàn giao đất. Việc đầu tư dự án này nhằm mục đích cải tạo, đảm bảo an ninh trật tự, vệ sinh môi trường và chỉnh trang đô thị quận Ninh Kiều.
Nhờ vị trí đẹp, cùng với lượng cư dân đông đúc và sự phát triển của khu vực. Đây là một trong những lý do chính khiến nhiều nhà đầu tư bất động sản quan tâm đến dự án này. Việc sở hữu một Shophouse liền kề tại đây không chỉ là cơ hội để phát triển kinh doanh mà còn là một khoản đầu tư bất động sản chắc chắn, đặc biệt trong bối cảnh thị trường bất động sản đang trên đà phát triển mạnh.
Pháp lý của khu dân cư Khu Đô Thị Mới An Bình Cần Thơ như thế nào?
Khu Đô Thị Mới An Bình Cần Thơ đã được phê duyệt chủ trương đầu tư và tỷ lệ 1/500 Đây là dự án mang tính chiến lược của thành phố Cần Thơ, được kỳ vọng rất lớn vào việc góp phần thay đổi bộ mặt đô thị. thành phố. Hạ tầng khu dân cư Khu Đô Thị Mới An Bình hàng đồng bộ, kết nối với hạ tầng khu vực. Nội dung tư vấn với chất lượng tiêu chuẩn.
Tiện ích Khu Đô Thị Mới An Bình Cần Thơ
Tiện ích Khu Đô Thị Mới An Bình Cần Thơ là một tổ hợp bao gồm các khu nhà liên kết , trung tâm thương mại, chợ và được tích hợp đầy đủ các tiện ích như: trường mẫu, trường tiểu học, trường trung học cơ sở chuẩn quốc gia; công viên, trung tâm y tế… nhằm đáp ứng tối đa nhu cầu cộng đồng dân cư trong lòng dự án. Hơn nữa, chủ đầu tư rất chú tâm xây dựng nhiều công trình xanh như công viên cây xanh, hồ nước, bờ kè… nhằm mang đến không gian sống xanh, thân thiện với môi trường.
Tại khu dân cư Khu Đô Thị Mới An Bình Can Tho, sự tiện nghi và không gian xanh mát luôn được chú trọng phát triển. Với hệ thống công viên cây xanh rợp bóng, bố trí tập trung dọc theo các trục đường chính, mang đến môi trường sống trong lành, căng tràn sức sống cho toàn bộ cư dân.
Tiện ích Khu Đô Thị Mới An Bình Cần Thơ: Đẳng cấp “All-in-one”
Với cách xếp hợp lý, phong cách thiết kế trang nhã và tinh tế, Khu Đô Thị Mới An Bình đã trở thành thế giới thu nhỏ của cuộc sống hiện đại, Hệ thống 2 vòng tiện ích: tiện ích khu đô thị và tiện ích nội khu môi trường sống chất lượng, hài hoà với thiên nhiên để cư dân có thể sống vui, sống khoẻ và sống tiện nghi. Các công trình tiện ích khu đô thị được ưu tiên thi công, vận hành từ những ngày đầu triển khai khu đô thị như:
- Công viên kết hợp với đường đi bộ
- Trường mần non, trường cấp 1 2 3 , trường quốc tế,…
- Khu thể thao đa năng gồm sân quần vợt, phòng tập gym hiện đại trong nhà
- Khu vui chơi cho trẻ em
- Nhà văn hóa
- Quán bar, quán café, nhà hàng khách sạn
- Hệ thống lưới điện sinh hoạt cung cấp toàn khu được thiết lập ngầm theo từng căn hộ
- Hệ thống điện thoại, chuyển đổi hình ảnh, đèn chiếu sáng ngoại vi chạy dọc các tuyến đường
- Quan sát camera thiết bị và đèn giao thông đặt tại ngã tư lộ chính kết hợp với đội tuần tra trong suốt 24 / 24h đảm bảo an ninh quy định.
- Đặc biệt, các dãy nhà cao tầng hiện đại như khách sạn, siêu thị, thương xá, văn phòng cho thuê… chạy dọc 2 bên trục lộ chính vào trung tâm dự án Khu nhà hợp tác ở tầng cao và biệt thự Khu Đô Thị Mới An Bình Cần Thơ

Không gian sống xanh an lành tại Khu Đô Thị Mới An Bình Cần Thơ
Một trong những tiện ích đắt giá nhất chính là môi trường sống. Với mật độ xây dựng chỉ khoảng 35% và gần 30% diện tích dành cho cây xanh và mặt nước, Khu Đô Thị Mới An Bình Cần Thơ thực sự là một không gian sống lý tưởng. Hệ thống kênh rạch tự nhiên được giữ gìn, khơi thông và tôn tạo, không chỉ tạo cảnh quan đẹp mà còn giúp đối lưu không khí, mang đến một môi trường sống luôn mát mẻ, trong lành và gần gũi với thiên nhiên.
Kết nối tiện ích ngoại khu nhanh chóng
Ngoài các tiện ích nội khu, cư dân tại Khu Đô Thị Mới An Bình Cần Thơ còn nằm gần các KCN và khu dân cư lớn nên trong vòng bán kính 3km, sẽ được thừa hưởng những tiện ích ngoại khu hiện hữu của khu vực lân cận như: Trung tâm hành chính, ngân hàng, trường học các cấp, bệnh viện, siêu thị, chợ,… Khu Đô Thị Mới An Bình Cần Thơ tọa lạc ngay “cung đường vàng” dẫn lên Cần Thơ và Bến xe trung tâm – là xương sống của nội ô Cần Thơ, kết nối các tuyến giao thông huyết mạch, tập trung nhiều tiện ích đẳng cấp; là vị trí trung tâm TP Cần Thơ, toàn bộ lợi thế an ninh, kinh tế và xã hội, giáo dục, chăm sóc sức khỏe và trung tâm các khu du lịch của đồng bằng sông Cửu Long

Hệ thống an ninh 24/7
Toàn bộ khu đô thị được vận hành với hệ thống an ninh đa lớp, bao gồm chốt gác tại các cổng ra vào, đội ngũ bảo vệ tuần tra liên tục và hệ thống camera giám sát 24/7, đảm bảo an toàn tuyệt đối cho tài sản và cuộc sống của cư dân.
Sản Phẩm Khu Đô Thị Mới An Bình Cần Thơ
Trải nghiệm thực tế sản phẩm Khu Đô Thị Mới An Bình Cần Thơ
Tham quan sản phẩm là bước quan trọng giúp khách hàng cảm nhận trực tiếp về chất lượng xây dựng, các loại vật liệu bàn giao, cũng như cách bố trí không gian thông minh và tối ưu công năng sử dụng. Mỗi loại hình sản phẩm đặc trưng như Đất Nền Khu Đô Thị Mới An Bình Cần Thơ hay shophouse đều có sản phẩm riêng , được chăm chút tỉ mỉ đến từng chi tiết.
Liên hệ tham quan sản phẩm
Khu sản phẩm luôn mở cửa đón khách tham quan. Để được hỗ trợ tốt nhất, sắp xếp lịch hẹn và có chuyên gia tư vấn chi tiết đồng hành trong suốt quá trình tham quan, quý khách hàng vui lòng liên hệ trực tiếp phòng kinh doanh vincom-shophouse.vn qua hotline 0944 505 454.
=> Nhà mẫu thiết kế tinh xảo phù hợp với thực tế và công năng sử dụng nên quý anh/chị quyết định mua sẽ có nhiều ý tưởng hơn trong thiết kế của mình trở nên xinh hơn và thực tế hơn cho mỗi gia đình.
Tiến Độ Khu Đô Thị Mới An Bình
Cử tri đề nghị thông tin về tiến độ dự án khu đô thị mới phường An Bình (khu 3). Nội dung trả lời của Sở Kế hoạch và Ðầu tư thành phố như sau: Dự án khu đô thị mới phường An Bình (khu 3) được UBND thành phố quyết định chủ trương đầu tư tại Quyết định số 2017/QÐ-UBND ngày 9-8-2018. Dự án có quy mô 48,75ha, được thực hiện tại khu đất phần lớn nằm trên địa bàn phường An Bình, quận Ninh Kiều và một phần nhỏ diện tích thuộc huyện Phong Ðiền.
Thời gian thực hiện dự án từ quý IV-2018 đến quý III-2023. Ngày 15-5-2020, Sở Kế hoạch và Ðầu tư phối hợp với các sở, ban, ngành, địa phương họp rà soát tiến độ triển khai thực hiện dự án. Theo đó, dự án đã được UBND thành phố phê duyệt đồ án quy hoạch chi tiết tỷ lệ 1/500; đang thực hiện hồ sơ dự án, thiết kế cơ sở, lập báo cáo đánh giá tác động môi trường,…
Về công tác giải phóng mặt bằng, chủ đầu tư đã ký hợp đồng với Trung tâm Phát triển quỹ đất để giải phóng mặt bằng dự án; đã thực hiện đo đạc phần diện tích khoảng 6ha ở huyện Phong Ðiền, thông báo thu hồi đất của 54 hộ dân và đang triển khai thực hiện kiểm kê do đạc phần diện tích đất khoảng 42,75ha tại quận Ninh Kiều.
Hiện nay, dự án đã chậm tiến độ so với chủ trương đầu tư của UBND thành phố. Sở Kế hoạch và Ðầu tư sẽ phối hợp với các sở, ngành, địa phương tiếp tục hỗ trợ chủ đầu tư triển khai nhanh các thủ tục còn lại của dự án; đồng thời, thường xuyên kiểm tra, giám sát tiến độ thực hiện dự án, kịp thời tham mưu UBND thành phố xử lý, nếu chủ đầu tư không tích cực triển khai thực hiện dự án.
Tiến độ Khu Đô Thị Mới An Bình Cần Thơ cập nhật mới nhất
Tính đến thời điểm hiện tại, dự án đã hoàn thiện.
Cam kết về chất lượng và thời gian bàn giao
Chủ đầu tư cam kết đảm bảo chất lượng công trình ở mức cao nhất và bàn giao sản phẩm đúng theo tiến độ đã công bố với khách hàng. Mọi hoạt động xây dựng đều được giám sát chặt chẽ, tuân thủ nghiêm ngặt các tiêu chuẩn kỹ thuật.
Hình ảnh thực tế công trường dự án
Tiến độ thi công có thể thay đổi nhanh chóng theo từng tuần, từng tháng. Để nhận được hình ảnh và video mới nhất, cập nhật nóng hổi trực tiếp từ công trường, quý khách hàng vui lòng liên hệ với đội ngũ của vincom-shophouse.vn.
Liên hệ phòng kinh doanh Khu Đô Thị Mới An Bình Cần Thơ
Quý anh/chị cần hỗ trợ thông tin về tiến độ dự án Khu Đô Thị Mới An Bình Cần Thơ vui lòng liên hệ qua Điện thoại, Viber, Zalo hoặc Wechat qua số điện thoại 0944.505.454
- Tư vấn chính xác thông tin chi tiết sản phẩm
- Hướng dẫn và tư vấn đúng nhu cầu thực tế (Đầu tư và An cư) cho khách hàng , chọn căn vị trí đẹp, phù hợp với nhu cầu khách hàng
- Hỗ trợ Hợp đồng – Pháp lý
- Hỗ trợ tham quan thực tế Hướng dẫn thủ tục và quy trình hỗ trợ ngân hàng
- Đồng hành trước và sau khi bán hàng cho khách hàng (Chuyển nhượng)
Khu Đô Thị Mới An Bình Cần Thơ không chỉ là nơi an cư lý tưởng mà còn là một kênh đầu tư an toàn, hiệu quả. Để nhận được sự tư vấn chuyên sâu, thông tin chính xác nhất và hỗ trợ tham quan dự án, quý khách hàng vui lòng liên hệ với các chuyên gia tại Phòng Kinh Doanh Dự Án Khu Đô Thị Mới An Bình Cần Thơ:
- Website: https://vincom-shophouse.vn/
- Hotline: 0944 505 454
- Địa chỉ: Mặt tiền Mặt tiền Đường Nguyễn Văn Cừ ,phường An Bình, Ninh Kiều, Cần Thơ Tp Cần Thơ.
Ký Gửi Bán Lại Khu Đô Thị Mới An Bình
Quý anh / chị cần hỗ trợ mua bán lại, ký gửi khu dân cư Khu Đô Thị Mới An Bình Cần Thơ vui lòng thông báo tin nhắn mã đất nền KDC Khu Đô Thị Mới An Bình Cần Thơ muốn bán lại ví dụ (Mã căn hộ, Giá hợp đồng, giá bán lại, ngày ký hợp đồng…) Hãy nhắn tin hoặc gọi điện qua hotline 0944 505 454 để định hướng nhé.
- Bán/ký gửi Dự án khu dân cư Khu Đô Thị Mới An Bình Cần Thơ – Mã đất nền:….
- Diện tích: ……. m2 Giá bán bao gồm VAT trên hợp đồng: ….. vnđ
- Lợi nhuận muốn thu về (sau khi trừ các chi phí: môi trường, công chứng, thuế ….): …. vnđ
- Tiến độ thanh toán trên hợp đồng: ……………. (Anh / chị vui lòng chụp tiến độ thanh toán trên hợp đồng của mình để chúng tôi biết tiến độ thanh toán)
- Họ tên & SĐT liên hệ: …….
